18+

СГК «заложит» в рубцовскую станцию 70 млн рублей ради «добавочных» гигакалорий

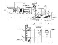
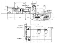
Схема Южной тепловой станции

«Барнаульская тепломагистральная компания» (входит в «Сибирскую генерирующую компанию») объявила аукцион по модернизации рубцовской Южной тепловой станции. СГК, которая с 1 января официально считается единой теплоснабжающей организацией Рубцовска, рассчитывает, что после проведенных работ возрастет мощность ЮТС, а также выработка электроэнергии станцией на собственные нужды.

Как следует из материалов сайта Госзакупок, всего на техперевооружение СГК готова вложить 70,3 млн рублей. При этом планируется увеличить тепловую мощность станции на 50−70 Гкал/час. Закупка проводится в форме запроса предложений, с победителем торгов будет заключен договор «на поставку оборудования тракта топливоподачи, шеф-монтажные и шеф-наладочные работы». Заявки на конкурс принимаются до 14 февраля, окончательный вердикт будет вынесен 29 марта.

Все товары должны быть поставлены уже к 30 июня. Монтаж и наладку оборудования необходимо завершить к 30 августа. Таким образом реконструкция ЮТС будет окончена примерно за три недели до начала нового отопительного сезона в городе.

Напомним, АО «Барнаульская тепломагистральная компания» с 1 января 2017 года стала единой теплоснабжающей организацией Рубцовска. Управление Алтайского края по госрегулированию цен и тарифов в конце декабря утвердило общие тарифы для горожан на тепловую энергию и горячую воду в новом году.

В начале августа прошлого года после продолжительных переговоров и одновременно на фоне угроз со стороны «Инвестиционно-девелоперской компании» вывести из эксплуатации Рубцовскую ТЭЦ СГК согласилась зайти в город. В итоге на обслуживание компании были переданы «Южная тепловая станция», 12 котельных и теплосетевой комплекс. ТЭЦ же осталась за ИДК. СГК уже тогда заявляла о готовности обеспечивать теплом весь город, но для этого необходимо было построить перемычку между двумя контурами. До конца ноября ситуация оставалась в подвешенном состоянии, пока не выяснилось, что к зиме на ТЭЦ не сформирован нормативный запас угля. Топливо пришлось перебрасывать с Южной станции, таким образом теплоснабжение города уже тогда велось за счет СГК. На ТЭЦ был введен режим ЧС. После этого происшествия в разгар отопительного сезона заговорили о том, чтобы передать ТЭЦ в аренду. Формально — новому муниципальному предприятию, на деле же — «Сибирской генерирующей компании».

Ранее руководство СГК указывало, что все инвестиции в теплоснабжение города могут окупиться только через 12−15 лет. Главная задача для СГК в Рубцовске на 2017 год — подписание концессионного соглашения с городской администрацией.

Фото: эскизный проект из документации аукциона

Цитата:

Администрация сайта призывает пользователей соблюдать правила комментирования

Комментариев 11
avatar
Гость

07.02.2017 15:03

север города, готовьте буржуйки
| 7 | 1
avatar
РУБЦОВЧАНИН

07.02.2017 15:24

Вообще то заявляли 1.9 миллиарда на реконструкцию , а обошлись 70 миллионами. Зачем тогда с 1 июля повышение оплаты за тепло и горячую воду 25 процентов. Крепитесь жители пришли очередные наперстночники!
| 15 | 2
avatar
Рубцовчанину

07.02.2017 16:15

Это только одна из закупок.
| 2 | 3
avatar
гость

07.02.2017 16:32

на севере за 2-х комнатную квартиру за тепло 800 руб, на юге за 2-х комнатную квартиру 2400 руб
| 5 | 4
avatar
Народный контроль

07.02.2017 16:53

Барыги из СГК совсем запутались в суммах, сроках и не видят берегов ни в чем.
Народ видит, как и где идут работы, а ни одного разрешения не получено. Все фикция в интересах обладателя яхты за 400млн Мельниченко и группы алтайских и рубцовских чиновников. Когда рубцовчане скажут "стоп" этому беспределу?
| 12 | 1
avatar
Ира

07.02.2017 17:04

С нового года вообще тариф единый в Рубцовске...зачем городить чепуху...
| 1 | 3
avatar
татьяна

07.02.2017 17:07

по мне так логично, чтобы получить благо надо сначала в это хорошо вложиться. я ребенку тоже не сразу велосипед покупаю, пока ползунками обходимся. потому и суммы частично выходят
главное наконец тепло! и не страшно, что завтра проснешься а в стакане вода замерзла
| 3 | 7
avatar
Житель.

07.02.2017 17:39

Кто-то может объяснить, почему за однокомнатную на юге, платим в 1,5 раза больше, чем за двухкомнатную в центре, температура в квартирах одинаковая, в управляющих компаниях пожимают плечами. Куда уплывают наши денежки?
| 7 | 1
avatar
:)

07.02.2017 18:13

РУБЦОВЧАНИН писал(а):
Вообще то заявляли 1.9 миллиарда на реконструкцию , а обошлись 70 миллионами. Зачем тогда с 1 июля повышение оплаты за тепло и горячую воду 25 процентов. Крепитесь жители пришли очередные наперстночники!

____________
Подходи, народ простой, за околицей не стой! Мне бабка Алена оставила в наследство три миллиона, один проиграю, другой пропью, третий вам подарю. Кручу-верчу, обмануть хочу - не зевай, не страдай, где тут шарик, угадай?
| 1 | 3
avatar
Народному контролю

07.02.2017 18:43

Власть дожидается пока народ с топорами и ружьями захватит ЮТС, РТЭЦ, почту, вокзал, телеграф. Классика жанра
| 8 | 0
avatar
Гость

07.02.2017 20:13

на севере за 2-х комнатную квартиру за тепло 800 руб, на юге за 2-х комнатную квартиру 2400 руб - это кто такое придумал ? сам в центре , за двушку платим те же 2000 грубо ,
если у кого метров больше то платят по более . всё аналогично , разница е5сть
в тарифе , у домов , даже соседних , он может быть очень разным .
| 3 | 0
06.05.2026